facebook no-scripts

Jost støtteben Modul B MH 800 H470 Høyre - B0303-0000R

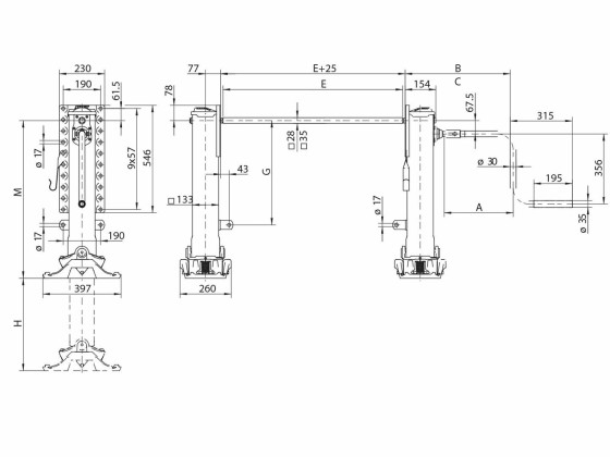
Støtteben Modul B MH 800 H470 Høyre - B0303-0000R

Flere visninger

Art. nr.: 740604 Salgsenhet:Stk Lagerstatus: På lager

Mer Info

Jost støtteben Høyre
Modul: B
MH: 800
H: 470
Modul B levers uten fot, sveiv og forbindelsesstang. Dette må bestilles separat.
Løftekapsitet 24 ton. Statisk belastning 50 ton.

Specification

Net Weight:39.1000 Line Disc:167
bevola 18-03-2026 04:48:17
Produkt Antall Pris
Total price excl. tax NOK 0,00