facebook no-scripts

Jost støtteben Modul B MH 850 H520 Venstre - B0203-0000L

Støtteben Modul B MH 850 H520 Venstre - B0203-0000L

Flere visninger

Art. nr.: 740603 Salgsenhet:Stk Lagerstatus: På lager

Mer Info

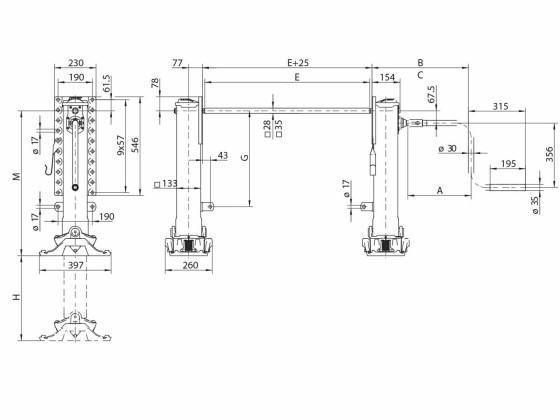
Jost støtteben Venstre
Modul: B
MH: 850
H: 520
Modul B levers uten fot, sveiv og forbindelsesstang. Dette må bestilles separat.
Løftekapsitet 24 ton. Statisk belastning 50 ton.

Specification

Net Weight:37.8000 Line Disc:167
bevola 18-03-2026 04:48:15
Produkt Antall Pris
Total price excl. tax NOK 0,00